Check out some of our recent work
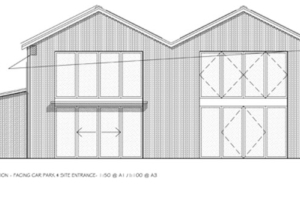
Wattlehurst Farm, Surrey
Prior Approval has been granted for the conversion of agricultural buildings to two residential dwellings.
Brookman’s Park
Planning permission has been secured for 2 applications in the exclusive Brookman’s Park area of Hertfordshire following an initial negative pre-application response from the Council.
Greville Rd
RP secured planning permission for the demolition of the existing industrial building and erection of 5 sustainable town houses, successfully overcoming a range of issues relating to amenity and the appearance of the houses.
The Self Storage Co.
Rackham Planning successfully secured planning permission at appeal for a new 60,000 sq ft self storage warehouse on this landmark site on one of the main routes into North London.
The Air Balloon pub
Planning permission was sought to convert a well known Bristol pub in Bristol into luxury flats.
Winterhay Lane
Rackham Planning were instructed by the landowner (Powrmatic Ltd) to secure an outline planning permission for 72 residential dwellings and employment floorspace on this key site in a South Somerset market town.
Dauncey’s Farm
Dauncey's Farm Our Role The client wanted to secure planning permission for the development of a new sports injury clinic and community centre. Rackham Planning saw the project through from beginning [...]
Clifton Down Parade
Conversion and extension for 14 flats of former 'Kickers' nightclub building in Clifton Down, Bristol.
Atlantic House Hotel
Atlantic House Hotel Our Role The Atlantic House Hotel is a new hotel and restaurant in Polzeath, Cornwall. The client had ambitious plans to demolish the old Atlantic House hotel and develop [...]





